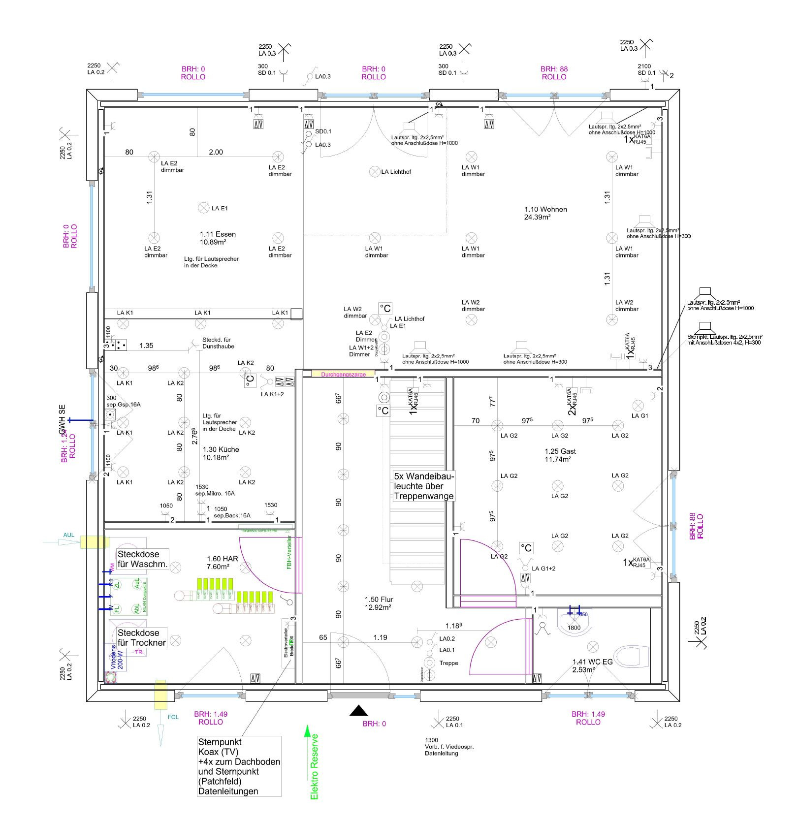
wir sind kurz vor dem Baubeginn, die Elektroplanung ist eigentlich schon abgeschlossen, nun möchte ich mir die Option vom Smart Home nicht verbauen und gleich zumindest etwas vorbereiten lassen. Bisher ist die Elektrik klassisch verlegt und nichts für Smart Home vorbereitet.
Da ich wie bereits erwähnt schon in paar Wochen mit dem Bau anfange, wollte ich den Elektriker das CAT7 Kabel in die Wand legen um später nach und nach das Smart Home einrichten.
Daher jetzt die eigentliche Frage, soll das CAT7 Kabel "nur" von dem Schaltschrank in die Schalter gelegt werden?
Geplant ist erst mal folgendes: Licht, Videosprechanlage und Beschattung.
In Zukunft: Heizung, Glasbruchsensor, Fenster- & Türkontakt, Wassereinbruchsensor, Garagentor, Lüftung & Klima, CO2-Sensor und ein Präsenzmelder.
Jetzt meine Verständnisfrage (in einem Bsp. für das Licht im Wohnzimmer) der Verkabelung.
Der Miniserver und die Extensions sind im Schaltschrank. Von hier aus geht das CAT7 Kabel bis zum Taster im Wohnzimmer, vom Taster geht ein normales Stromkabel zu den Lichtern in der Decke?
Mein Elektriker hat gesagt, das die Rollladen Sternförmig verlegt wird. Wie geht das hier?
Habit ihr vielleicht noch eine Idee, was ich vielleicht besser machen könnte?
Ich habe mir echt viel Gedanken bei der Planung gemacht.
Ich hoffe, ich konnte meine Frage so wiedergeben, dass ihr das versteht

LG

Kommentar