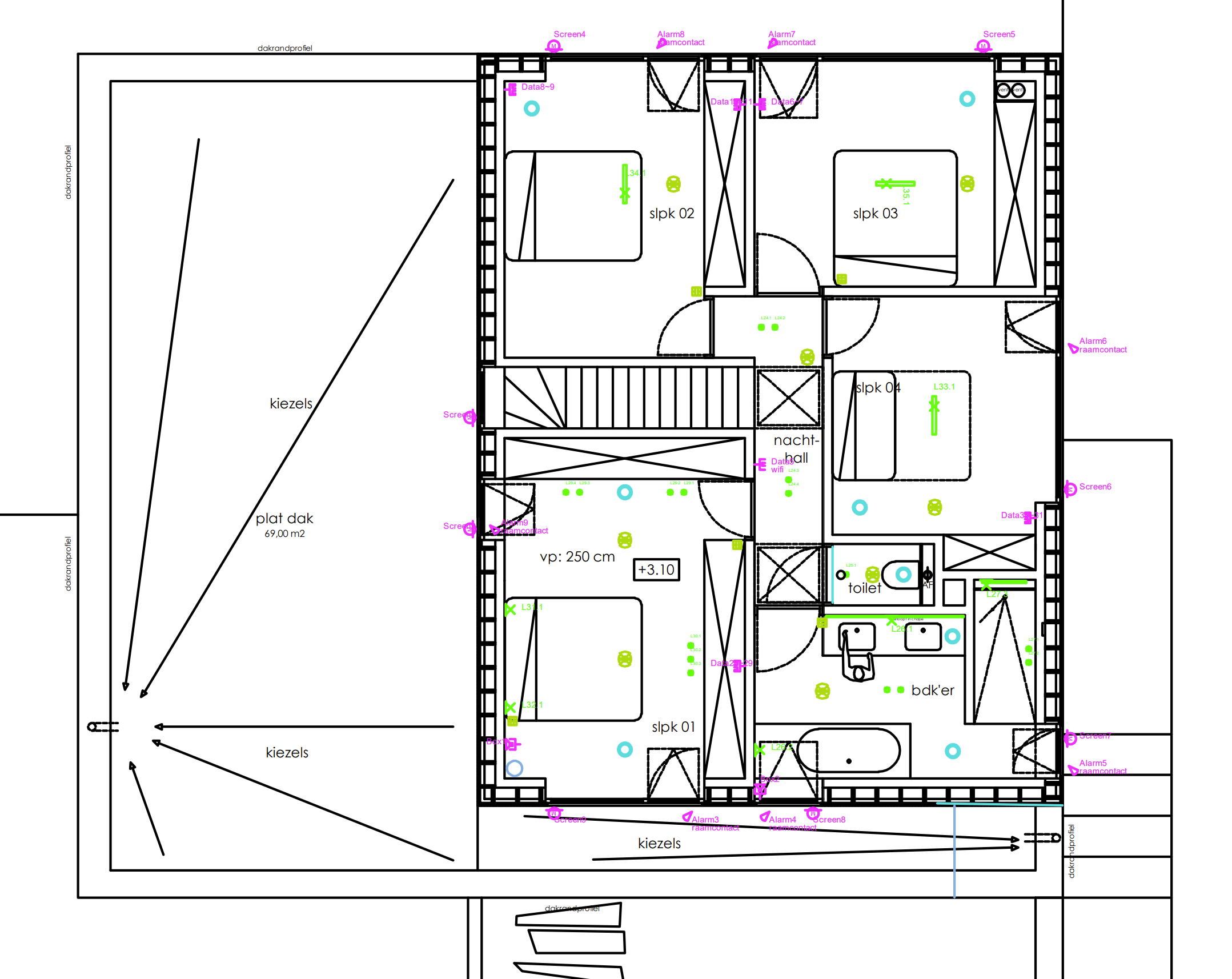
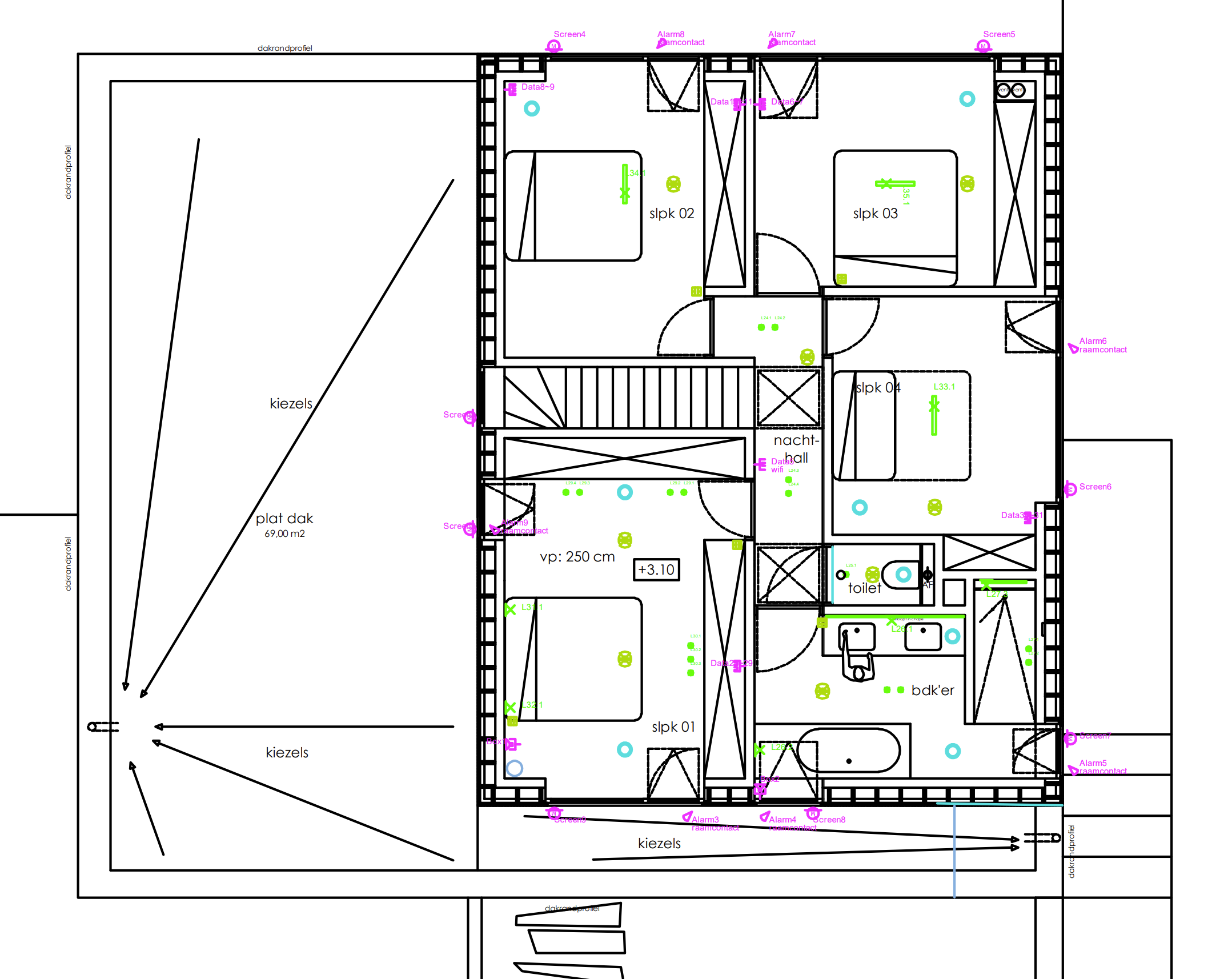
.I already made a plan on placement of the components. I added these below, including some open questions. I left objects related to ventilation and lighting on the plan so you can see how everything is aligned with each other.
Small explanation:
- Blue circles are ventilation valves
- Small green circles are lighting spots
- Other green lines are LED strips
- The Loxone motion sensors are moss green ovals with a cross in the middle
- The Loxone (or other) touch buttons are moss green squares near some of the doors
1. Basement
- Loxone Touch buttons in hallway and desk. In the technical space a regular push button.
- Sensors in all rooms, with the exception of the tecnical area
=> There might be a physical separation of the rooms in the future, thats whay so many sensors
- Loxone Touch Pure buttons near every door, with the exception of the toilet, the stash room next to the kitchen and the terrace
=> Would you place more Touch buttons in other places?
- Sensors in all rooms
=> Low wall where the desk on the south side is, so 1 sensor is sufficient there
=> Is it useful to have a sensor at the main entrance outside?
=> Would you also place the sensors in the living room like this? Maybe best to leave some more space between them and move the most southern sensor closer to the southern window.
3. Upper floor
- Motion sensors in each room
- Touch buttons at each door + at the bed in our bedroom
=> Would you place a sensor on each side of the bed?
=> In the other rooms I would foresee a regular push button near the bed to switch / dim the lights. Good idea?
Loxone miniserver will be placed in the garage.
Currently I use the Tree cable for the motion sensors.
I am also looking into a solution for Audio / streaming. We currently use 2 Sonos Play devices and I am ready with these. Since we have room in the ceiling, I was thinking to start switching over to in-ceiling speakers. The Sonos in-ceiling speakers are very expensive however, for the many I can buy multiple decent speakers from other vendors. Since I did not invest into Sonos that much yet, the Loxone Audio Server is still an option (max 6 zones). Would anyone recommend the Loxone Audio Server? Any good experiences with streaming?
If there are things you would do differently => shoot! Open to suggestions for improvements.
Kommentar