Wieviele Deckenlautsprecher in einen Raum 2 oder 4? Beispiel Wohnzimmer

Einklappen
X
 
  • Zeit
  • Anzeigen
Alles löschen
neue Beiträge
  • simon_hh
    Lox Guru
    • 18.09.2015
    • 2670

    #1

    Wieviele Deckenlautsprecher in einen Raum 2 oder 4? Beispiel Wohnzimmer

    Angelehnt an den tollen Input im Thread <Synchronisieren von Lautsprecher über Kabel und Funk / Sonos/Heos, etc. > von Euch habe ich mal folgendes Anliegen:

    Es sind nun überall Kabel gezogen, also in der Decke als auch unten in den Wandecken im Wohnzimmer. So kann ich auf Stand-Lautsprecher zurückgreifen oder eben Deckenlautsprecher. Ein 5.1 System könnte ich nachrüsten. Das ist mir nicht ganz so wichtig, dass der TV synchron mit den Lautsprechern in der Küche läuft.
    Nur die Musik eben. Aber das geht nun ja, wenn alles verkabelt ist.

    Eine Frage an Euch.
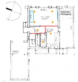
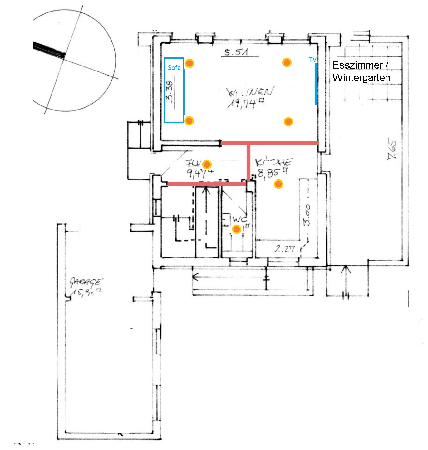
    In der Decke in der Küche ist ein Lautsprecher, im Flur auch und

    im Wohnzimmer hatte ich 4 Stück geplant.

    Sind 4 Stück sinnvoll, wie ist das akustisch?
    Geplant waren 4 Stück jeweils 1m Abstand zur Wand.
    siehe 1. Bild.

    Klicke auf die Grafik für eine vergrößerte Ansicht

Name: image_2845.4_LSjpg.jpg
Ansichten: 3256
Größe: 218,7 KB
ID: 26384

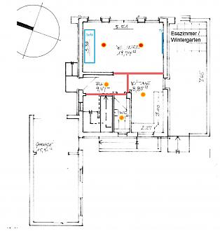
    Ist es eventuell sinnvoller nur 2 zu nehmen???

    Also so wie hier?

    Klicke auf die Grafik für eine vergrößerte Ansicht

Name: image_2845.2_LSjpg.jpg
Ansichten: 2852
Größe: 217,1 KB
ID: 26385

    Decke ist noch bis Samstag offen und ich kann noch ändern.

    Wäre über Euren Input erfreut!

    LG Simon
    Haus: Bj 1959, gekauft 2011, totale Entkernung, Dachausbau, Erweiterung & Vergrößerung: Start: 2014, Ende: 2050
    Loxone: 1 x Ms Gen.02, 1 x MS Gen.01, 5 x Ext., 4 x Relay Ext., 1 x Dimmer Ext., 2 x 1-wire Ext., 1 x DMX Ext. 1 x TREE Ext. mehr kommt noch
    Licht: DMX LED Beleuchtung (24V), MW HLG Serie und eldoled Dimmer
    Heizung: Brötje WBS 22F, OG Heizkörper und FuBoHeizung über RTL, EG FuBoHeizung
  • Christian Fenzl
    Lebende Foren Legende
    • 31.08.2015
    • 11250

    #2
    Die roten Linien sind, soweit ich mich erinnere, nur Deckenbalken, keine Wände, richtig?
    Für den Wohnbereich mit 20qm sind von der Leistung zwei LS ausreichend.
    Überlege dir, wo du dich dort am meisten aufhältst, und richte die LS nach dem Stereobild aus.
    Mit Diele und Küche hast du faktisch schon 4 LS.
    lg, Christian
    Hilfe für die Menschen der Ukraine: https://www.loxforum.com/forum/proje...Cr-die-ukraine

    Kommentar

    • simon_hh
      Lox Guru
      • 18.09.2015
      • 2670

      #3
      Moin Christian,

      genau, das rote sind offene Träger an der Decke, 20cm stark, die ich auch damit als Raumtrenner verwende! Sie bleiben offen und werden später anthrazit lackiert.

      sieht man hier:
      Klicke auf die Grafik für eine vergrößerte Ansicht

Name: fetch?id=20110.jpeg
Ansichten: 3021
Größe: 184,1 KB
ID: 26394


      ich hatte gestern einen Deckenlautsprecher in die <Holz-Einbaubox für abgehängte Decken> gepackt und war vom Sound sehr überrascht, klingt nicht mehr so hohl, wie vorher, als der LS einfach an der Decke hing, und hinten alles frei war.
      Das heißt für mich: Das reicht mir für Musik eigentlich fast schon aus. Wenn es doch mehr Druck geben soll, kann ich zwei Stand-LS mit anschließen, das sollte dann genug rumsen.


      Haus: Bj 1959, gekauft 2011, totale Entkernung, Dachausbau, Erweiterung & Vergrößerung: Start: 2014, Ende: 2050
      Loxone: 1 x Ms Gen.02, 1 x MS Gen.01, 5 x Ext., 4 x Relay Ext., 1 x Dimmer Ext., 2 x 1-wire Ext., 1 x DMX Ext. 1 x TREE Ext. mehr kommt noch
      Licht: DMX LED Beleuchtung (24V), MW HLG Serie und eldoled Dimmer
      Heizung: Brötje WBS 22F, OG Heizkörper und FuBoHeizung über RTL, EG FuBoHeizung

      Kommentar

      • Daniel *
        LoxBus Spammer
        • 25.08.2015
        • 232

        #4
        Hallo,

        eine Einbaubox ist jedoch nur zu empfehlen wenn es anders nicht geht. Die Deckenlautsprecher nutzen normal das Volumen der (abgehängten) Decke und klingen so noch besser.
        Auf den Latten (wie im Bild ersichtlich) kommen da schon die Rigipsplatten darauf?

        Würde auch auf 2 LS setzen. Welche LS hast du dir ausgesucht?

        Kommentar

        • maxw
          Lox Guru
          • 26.08.2015
          • 1402

          #5
          4 Deckenlautsprecher machen imho nur dann sinn, wenn du mal auf 3D Audio aufrüsten willst. Dann sollten sie je nach Setup angeordnet sein, siehe die einzelnen Beschreibungen. http://www.dolby.com/in/en/guide/dol...-4-setups.html

          Kommentar

        • Christian Fenzl
          Lebende Foren Legende
          • 31.08.2015
          • 11250

          #6
          Das scheinen schon 50er Abstände zu sein, direkt zum Beplanken. Fugenband verwenden! Bei Holz als Unterkonstruktion ist die Rissgefahr besonders hoch.
          Hilfe für die Menschen der Ukraine: https://www.loxforum.com/forum/proje...Cr-die-ukraine

          Kommentar


          • simon_hh
            simon_hh kommentierte
            Kommentar bearbeiten
            vielleicht war es auch 50, das habe ich nicht mehr im Kopf. Das ist schon eine Weile her

          • Christian Fenzl
            Christian Fenzl kommentierte
            Kommentar bearbeiten
            In den Stößen der GKP meinte ich. Die Wandanschlüsse würde ich mit Acryl machen - aber da gibt es 10 Meinungen. GKP-Anschluss an Massivwand kann man - nach Aussage meines Malers - nicht spachteln, das reißt sonst sicher.

          • simon_hh
            simon_hh kommentierte
            Kommentar bearbeiten
            Achso.
            Da machen wir uns keine Sorgen, die Decke wird nicht reißen, Du musst die richtigen Platten nehmen.
            Die GK-Platten haben extra eine 5cm breiten schmaleren Übergangsbereich.
            die Fugen werden mit flexiblem Spachtel und Glasfasernetz gespachtelt. Wandübergang mit Acryl (da übermal-bar). Dann eben versetzt anschrauben, mindestens 50cm überlappend.
            Das hatte im OG auch bisher gut gehalten.
        • simon_hh
          Lox Guru
          • 18.09.2015
          • 2670

          #7
          richtig, die Rigips Platten kommen auf die Lattung!

          Ich habe bisher zwei loxone Speaker hier rumliegen und diese für Küche und Flur geplant. Für das Wohnzimmer würden Sie eventuell ausreichen.
          Meine maximale Einbautiefe ist 11,5cm, dann kommt die (Lehm-)Zwischendecke. Die lox Speaker passen dann genau rein.

          Hast Du eine bessere Alternative? Also eine die auch wirklich merklich besseren Sound bringt, bei gleiche Einbautiefe?


          Ich habe den Hohlraum (zwischen Rigips und alter Holzdecke mit Glas und Steinwolle ausgefüllt) zwecks Geräuschdämmung nach oben.
          Der Aufbau ist: Rigips (1,25 cm) <-> Lattung <-> Glas-/Steinwolle (12 cm) <-> Holz-Zwischenboden <-> Lehmeinschub (10-12 cm) <-> Luft (2cm) <-> Oberboden (doppelte OSB-Platten 15+18mm) <-> Entkopplungsmatte <-> Bodenbelag (Kork / Laminat)


          Wie genau ist das mit den Einbauboxen? Ich las nun verschiedene Aspekte in anderen Foren:
          -einerseits schränken sie das Volumen ein, der Bass würde flöten gehen. Es wäre besser, die LS ohne Rahmen zu betreiben, damit sie einen größeren Resonsanzkörper haben.
          -andererseits schreiben auch einige, ohne Einbaubox würde die ganze Decke brummen und es käme zu akustischem Kurzschluss und seltsamer Geräuschkulisse

          Die Einbaubox würde genau reinpassen, ich kann sie aber auch weglassen.

          Haus: Bj 1959, gekauft 2011, totale Entkernung, Dachausbau, Erweiterung & Vergrößerung: Start: 2014, Ende: 2050
          Loxone: 1 x Ms Gen.02, 1 x MS Gen.01, 5 x Ext., 4 x Relay Ext., 1 x Dimmer Ext., 2 x 1-wire Ext., 1 x DMX Ext. 1 x TREE Ext. mehr kommt noch
          Licht: DMX LED Beleuchtung (24V), MW HLG Serie und eldoled Dimmer
          Heizung: Brötje WBS 22F, OG Heizkörper und FuBoHeizung über RTL, EG FuBoHeizung

          Kommentar

          • maxw
            Lox Guru
            • 26.08.2015
            • 1402

            #8
            Bei Deckenlautsprechern bitte immer dran denken - der Schall geht auch sehr gut nach oben! Also wenn darüber ein bewohntes Zimmer ist, ist das eine denkbar ungünstige Lösung!

            Kommentar


            • simon_hh
              simon_hh kommentierte
              Kommentar bearbeiten
              Oben ist das Schlafzimmer, Kinder-, sowie Ankleidezimmer und das große Bad. Musik stört nicht, Brummen schon

            • maxw
              maxw kommentierte
              Kommentar bearbeiten
              Tja, wenn oben die Kinder schlafen wollen und du über eingebaute Deckenlautsprecher Musik hören oder einen Film mit wummmmms schauen willst, ist das sub-optimal. Da würde ich eher welche AUF die Decke montieren (gibt einiges dazu), oder auf eine echte abgehängte Decke setzten.
          • maxw
            Lox Guru
            • 26.08.2015
            • 1402

            #9
            Zitat von simon_hh
            richtig, die Rigips Platten kommen auf die Lattung!

            Hast Du eine bessere Alternative? Also eine die auch wirklich merklich besseren Sound bringt, bei gleiche Einbautiefe?
            Ich habe sie zwar nicht gehört, würde aber mindestens ein paar Loxone Speaker drauf verwetten, das diese Lösung hier https://www.lautsprecherbau.de/Lauts...6,de,90880,174 deutlich besser kling - wenn man unter besser naturgetreue Wiedergabe versteht!

            Kommentar

            • Leigh
              MS Profi
              • 25.08.2015
              • 728

              #10
              Welch Spekulationen.
              Ein LS sollte immer in einem definierten Volumen laufen.
              Und einfach in eine Decke Schrauben, is keine vernünftige Option.
              3D Audio? Was is bitte das denn?
              Aber der Tip der Lautsprecher is der richtige Weg!


              Via Apfel stenografiert....
              Ciao, Leigh

              Nur der eigene Geist setzt uns Grenzen...

              Kommentar

              • simon_hh
                Lox Guru
                • 18.09.2015
                • 2670

                #11
                Moin,
                3D Audio kommt nicht in Frage.
                Wir sollten die Kirche im Dorf lassen.
                Ich will kein Heimkino. So selten, wie ich fernsehe...

                Ich möchte Musik hören, meist leise und auch mal laut, wenn keiner zu Hause ist und ich meinen Abend z.B. nach einer Dienstreise mit einem Kaltgetränk genieße und laut ausklingen lasse

                Ich finde aber die Frage nun schon interessant:
                LS in Einbaubox in der Decke oder einfach so in die Decke?

                Ich dachte bei 4 LS (gerade, weil sie in der Decke sind) habe ich eine bessere Verteilung im Raum. Bei 2 ist es wieder aus einer Richtung. Aber vielleicht versaue ich mir aber auch den Sound mit 4 LS
                Haus: Bj 1959, gekauft 2011, totale Entkernung, Dachausbau, Erweiterung & Vergrößerung: Start: 2014, Ende: 2050
                Loxone: 1 x Ms Gen.02, 1 x MS Gen.01, 5 x Ext., 4 x Relay Ext., 1 x Dimmer Ext., 2 x 1-wire Ext., 1 x DMX Ext. 1 x TREE Ext. mehr kommt noch
                Licht: DMX LED Beleuchtung (24V), MW HLG Serie und eldoled Dimmer
                Heizung: Brötje WBS 22F, OG Heizkörper und FuBoHeizung über RTL, EG FuBoHeizung

                Kommentar

                • hismastersvoice
                  Supermoderator
                  • 25.08.2015
                  • 7586

                  #12
                  Zitat von simon_hh
                  LS in Einbaubox in der Decke oder einfach so in die Decke?
                  Ich betreibe alle LS in einem Gehäuse (Magnat IC82 / IC62), da ich nach mehreren Tests festgestellt habe das es besonders beim Bass einfach sauberer klingt.
                  Nehmen wir mal die Lox Speaker und das Gehäuse das zwar für die Betonwand/decke ist, aber eben nur ein recht kleines Volumen aufweist.
                  Nun ist es so das ein LS eine bestimmte Abstimmung hat und durchaus auch in kleinen bzw. sehr großen Volumen spielen kann z.B. Decke oder Kofferraum eines Auto usw.
                  Ich sage Gehäuse "JA" da das Volumen einer Decke ja nicht definierbar ist, Faktoren wie groß ist die Fläche wieviel Volumen ist hinter der Decke usw. das alles stellt einen Kompromiss dar.

                  Zitat von simon_hh
                  Ich dachte bei 4 LS (gerade, weil sie in der Decke sind) habe ich eine bessere Verteilung im Raum. Bei 2 ist es wieder aus einer Richtung. Aber vielleicht versaue ich mir aber auch den Sound mit 4 LS
                  Nehmen wir z.B. die Lox LS oder die Magnat IC82 die beide Stereo in einem LS spielen und nehmen 2 davon in einen Raum ist es akustisch egal wo du im Raum bist besser als 4 LS die jeweils Mono spielen.

                  PS: Im Wohnzimmer setzte ich eher auf Wandmontage um gleich das Dolby 5.1 darstellen zu können.
                  Hier kann ich die Canton 800Serie ans Herz legen, Klag zu Preis sehr gut.

                  Zuletzt geändert von hismastersvoice; 05.02.2016, 08:34.
                  Kein Support per PN!

                  Kommentar

                  • simon_hh
                    Lox Guru
                    • 18.09.2015
                    • 2670

                    #13
                    Zitat von hismastersvoice

                    Nehmen wir mal die Lox Speaker und das Gehäuse das zwar für die Betonwand/decke ist, aber eben nur ein recht kleines Volumen aufweist.
                    Nee dieses hier mit 9,1 L Volumen:
                    Das Einbaugehäuse Install 7 eignet sich zum Einbau der Loxone Speaker in abgehängte Decken oder bei Holzriegelbauweise. Für den perfekten Klang im Loxone Smart Home!


                    würde auch einfach ideal rein passen. Ich habe 11,5-12 cm nach oben und das Gehäuse 10,8cm Tiefe.
                    Haus: Bj 1959, gekauft 2011, totale Entkernung, Dachausbau, Erweiterung & Vergrößerung: Start: 2014, Ende: 2050
                    Loxone: 1 x Ms Gen.02, 1 x MS Gen.01, 5 x Ext., 4 x Relay Ext., 1 x Dimmer Ext., 2 x 1-wire Ext., 1 x DMX Ext. 1 x TREE Ext. mehr kommt noch
                    Licht: DMX LED Beleuchtung (24V), MW HLG Serie und eldoled Dimmer
                    Heizung: Brötje WBS 22F, OG Heizkörper und FuBoHeizung über RTL, EG FuBoHeizung

                    Kommentar

                    • hismastersvoice
                      Supermoderator
                      • 25.08.2015
                      • 7586

                      #14
                      Zitat von simon_hh
                      Nee dieses hier mit 9,1 L Volumen:
                      Das Einbaugehäuse Install 7 eignet sich zum Einbau der Loxone Speaker in abgehängte Decken oder bei Holzriegelbauweise. Für den perfekten Klang im Loxone Smart Home!

                      würde auch einfach ideal rein passen. Ich habe 11,5-12 cm nach oben und das Gehäuse 10,8cm Tiefe.
                      Ja sind jetzt 9,1 Liter den viel Volumen im gegensatz zu einer abgehängten Decke
                      Tipp: Im Baummarkt MDF zuschneiden lassen und ein paar Schrauben und das Ding kostet dich einen 10er.
                      Kein Support per PN!

                      Kommentar


                      • maxw
                        maxw kommentierte
                        Kommentar bearbeiten
                        Je mehr Volumen du hast, um so näher kommst du der &quot;unendlichen&quot; Schallwand. Wenn du auf das Gehäuse verzichten kannst und sicher stellst, dass es zu keinem akustischen Kurzschluss kommt, hast du ohne Gehäuse sicher den besseren Klang. 9 Liter für einen Deckenlautsprecher sind einfach viele zu mickrig, auch wenn Loxone das so verkauft.

                      • tholle
                        tholle kommentierte
                        Kommentar bearbeiten
                        Genauso hab ich's auch gemacht.
                    • maxw
                      Lox Guru
                      • 26.08.2015
                      • 1402

                      #15
                      Ich darf mal auf den Artikel verweisen http://www.loxwiki.eu:80/x/SAJN - und ja, ich kenne mich mit LS ziemlich gut aus :-)
                      Deckenlautsprecher, so wie Autolautsprecher auch, sollten NICHT in einer Box, sondern an einer "unendlichen" Schallwand betrieben werden.
                      Du wirst KEINEN Autolautsprecher finden, der in einer Box steckt (mal von speziellen Tieftöner ev. abgesehen). Die stecken alle nur in der "Verkleidung" und haben den ganzen Raum dahinter für sich --> Prinzip unendliche Schallwand.

                      Kommentar

                      Lädt...